- Immobilienart: Grundstück
- Kategorie: Sondergebiet
- Kaufpreis: 185.000 €
- Gewerbefl.: ca. 70,00 m²
- Grundstücksfl.: ca. 570,00 m²
- Käuferprovision: 5,95 %
- Heizungsart: Nachspeicher
- Teilweise erschlossen
- Bebaubar nach Bebauungsplan
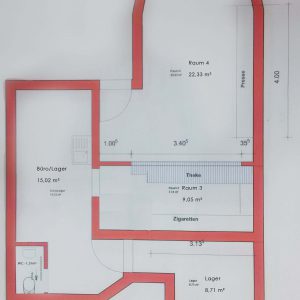
Dieser gepflegte und sehr rentable Kiosk wurde in den letzten Jahren durch liebevolle Hände modernisiert und renoviert und erfreut sich Dank seiner Lottoannahmelizenz zahlreicher Stamm- als auch Laufkundschaft. Eine überdachte Terrasse mit Sitzgelegenheiten vor dem Kiosk und eine von mannshohen Hecken umsäumte Terrasse hinter dem Kiosk, bieten die Möglichkeit einer erweiterten Angebotspallette wie z.B. einem Imbiss. Die Fläche teilt sich in einen Verkaufraum von ca. 32 m², ein Büro/WC/Lagerraum von ca. 16 m² und einem Lagerraum von ca. 9 m² auf. Ein weiterer Lagerraum befindet sich neben dem Gebäude. Zu dem Kiosk, der sich auf ca. 70 m² Fläche beschränkt, gehören die umliegenden Wege- und Terrassenflächen, sowie ein angrenzendes Grundstück welches derzeit den Nachbarn als Rasenfläche dient. Laut Bebauungsplan der Stadt ist die gesamte Fläche als Kioskfläche/Sondergebiet ausgewiesen.
Verkaufsfläche: 32 m²
Büro/WC/Lager: 16 m²
Lagerfläche: 18 m²
Terrassen: 14 m²
In einem von überwiegend mit Ein- und Mehrfamilienhäusern bebauten Wohngebiet in Ortsrandlage und an einer breiten Zufahrtsstraße unweit zur Hauptstraße gelegen. Ausreichend Parkplätze befinden sich direkt gegenüber dem Kiosk.





